Category
House Plans
About This Project

The Louisa – Tidewater Cottage

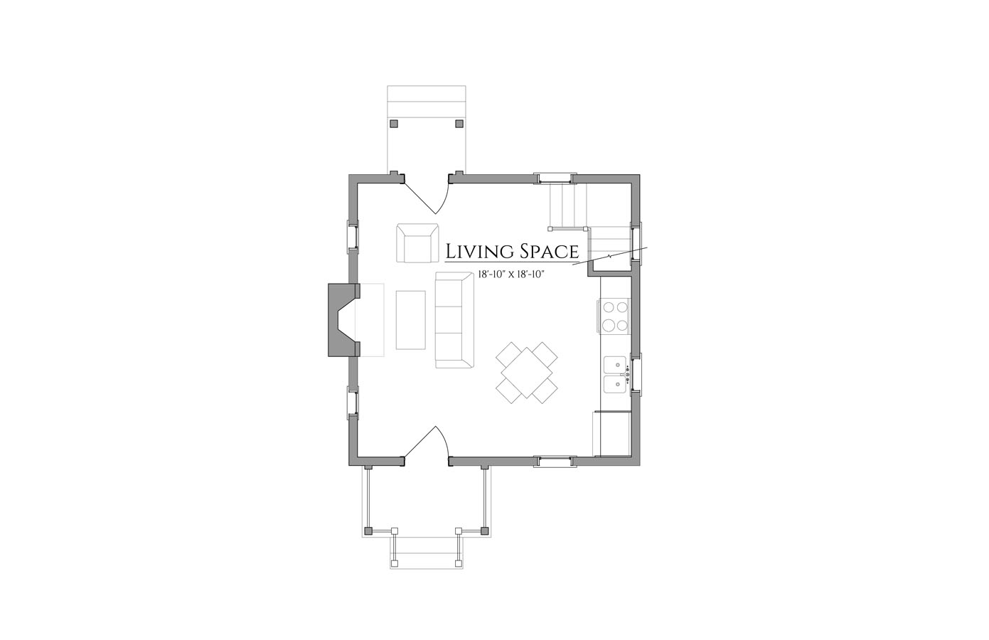
A cute small 1 bedroom cottage in a Tidewater Virginia style. The first floor has a small kitchen / living room, and the upper floor has an ample master suite. Perfect for a weekend retreat house or accessory dwelling.

  • 1 bedroom
  • 1 bath
  • 1.5 stories
  • 20 ft x 20 ft
  • 720 sq ft
  • 1 fireplaces