Category
Church Master Planning, Churches
About This Project

St. Joseph Catholic Church & Master Plan

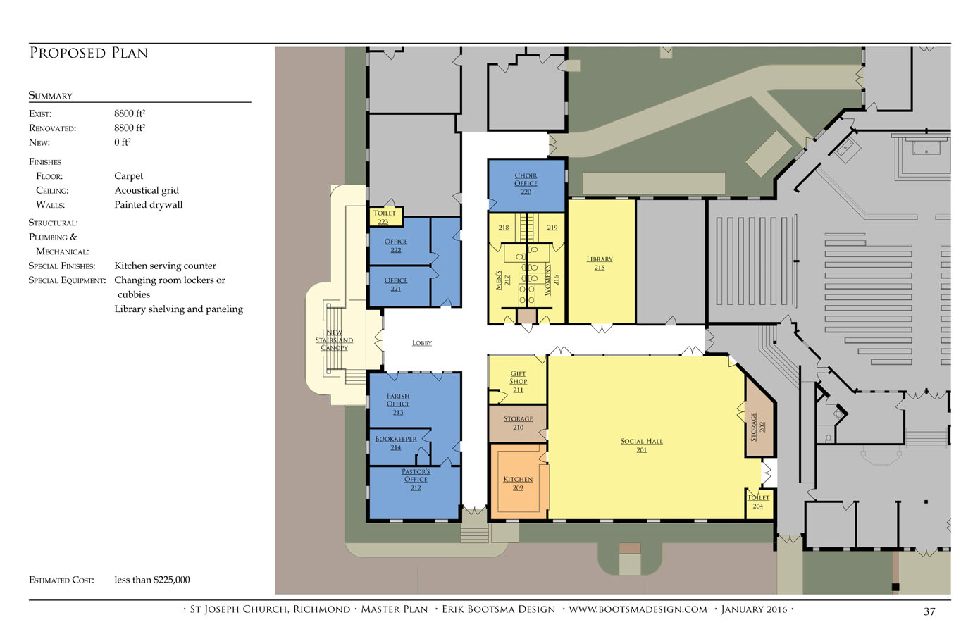
This project was to produce a long-term master plan for a growing parish. The parish had several pressing issues that needed immediate attention. However, with limited facilities and uncertain future needs, the desire for a larger guiding plan was needed.

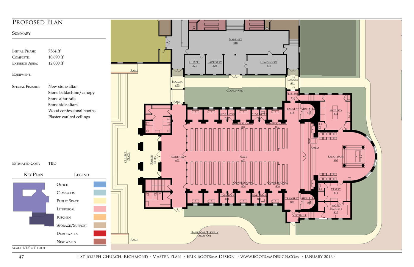
The church had plans for an expanded parish hall, improved offices, parking and most of all a new church to replace an aging 1970s church which was originally designed for a Protestant congregation.

The master plan organized projects into phases which could be individually funded and allowed for each project to build upon the last with little or no duplication or changes in the future. The new church was designed and rendered to provide a focus for long term fund-raising.

The church is currently engaged on an update of the master plan after 10-year review.

Richmond Virginia.

Status: Master Planning Completed 2015 – Refresh begun 2026