Category
Carriage House Plans
About This Project

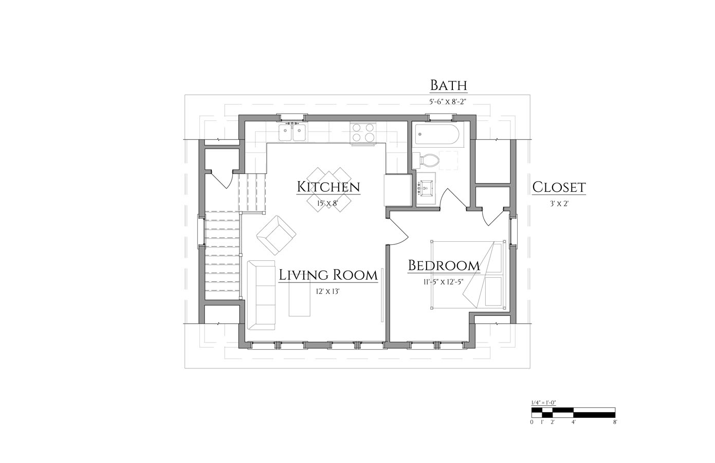
The Eccles – Craftsman Carriage House

A medium-sized carriage house in a Craftsman style. The garage has double 9 ft garage doors and a half bath and ample work space. The apartment above has a small kitchen / living room, and a small master suite. This carriage house makes an ideal accessory dwelling unit or a home office and is designed to fit a 35 foot lot but can fit as narrow as a 28 foot lot sideways.

  • 1 bedroom
  • 1 1/2 baths
  • 2 stories
  • 30 ft x 22 ft
  • 600 sq ft apartment